Banco de capacitores de media tensión 15, 23 y 34.5Kv

Este tipo de Bancos son utilizados para proveer grandes cantidades de KVAR divididas en bloques, en los sistemas de distribución y conectados en paralelo.

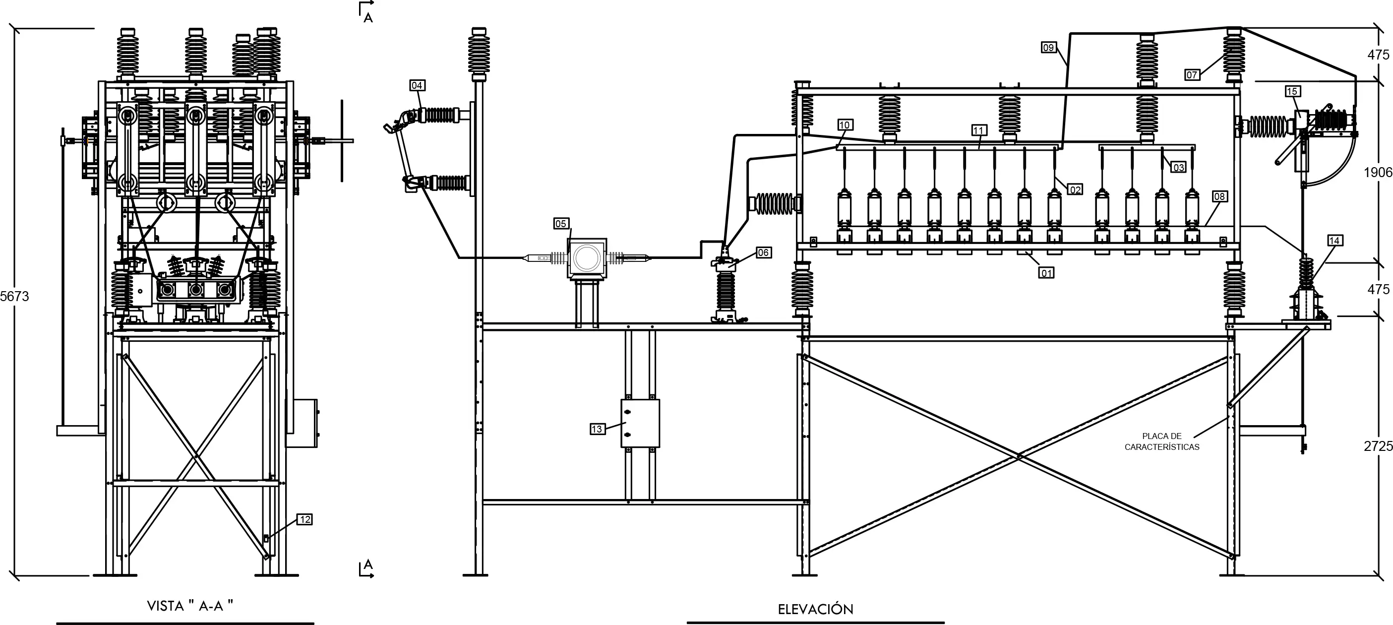
Es posible instalar Bancos de Capacitores Para Tensiones de 15, 24 y 34.5 KV, esto es posible gracias a la conexión de grupos de capacitores conectados en serie, que permiten conectarse en cualquier tensión de los sistemas eléctricos. Cada capacitor es individualmente protegido por un fusible tipo expulsión o en algunos casos con fusibles limitadores de corriente. Las unidades capacitivas pueden ser montadas en los bastidores tanto horizontal como verticalmente en estructuras de aluminio o fierro galvanizado. Los bancos de capacitores subestación pueden ser suministrados con un esquema de protección por desbalance y con equipo de interrupción

Especificaciones

Cargando